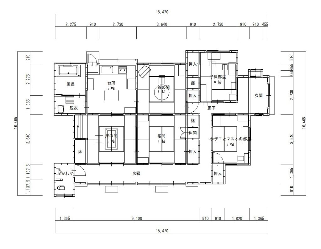
概要
- 階数:平屋建て
- 玄関:東玄関
- 間取り:5DK
- 間口:11.5p
- 奥行き:17p
- モジュール:910mm
- 柱サイズ:120角
| 1階床面積 | 122.35㎡(37.01坪) |
| 延べ床面積 | 122.35㎡(37.01坪) |
以下を除いて、ほぼ磯野家の間取り図です。
- モジュール
昔なので本間と思われますが、現実的に910mmで作図しています。
間取り図
- 謎の開かずの間
磯野家には四方向壁に囲まれた謎の空間が2箇所存在します。
カツオとワカメの折檻部屋なのか?
サザエさんのへそくりを隠している場所なのか?
決して開けてはいけない呪いの間なのか・・・

画像は自由にお使いください
外観
- 基礎
原作は縁側として束で支持されていますが、広縁として構造上基礎を設けています。 - 屋根形状
原作の間取りと姿の整合性が不明確なため、屋根形状・屋根勾配など少し変更しています。

画像は自由にお使いください
CADデータ(jww、dxf)
- 実務でも利用できる内容の平面図がダウンロードできます。
- CADデータなので、CADソフトで簡単に修正できます。
- データはレイヤ分けされています。不要な場合には非表示にしてご利用ください。
- 柱配置・構造等は、安全を保証するものではありません。
- データ形式は「JWW」と「DXF」をダウンロードできます。

CADデータは自由にお使いください
雑学 AI
磯野家の間取り
アニメ『サザエさん』の舞台である磯野家は、昭和の木造住宅の代名詞とも言える素晴らしい造りですよね。実はあの家、延べ床面積が約30坪以上(約100平米以上)もあり、都内(世田谷区桜新町)の一等地的にはかなりの「豪邸」に分類されます。
主な間取りの特徴をまとめました。
磯野家の基本構成:5DK
磯野家は平屋建てで、部屋数は全部で5室あります。
| 部屋名 | 主な使用者 | 特徴 |
| 居間(茶の間) | 家族全員 | 家族団らんの場。ちゃぶ台があり、テレビが置かれています。 |
| カツオ・ワカメの部屋 | カツオ、ワカメ | 居間の隣。勉強机が二つ並んでいます。 |
| サザエ・マスの部屋 | サザエ、マスオ、タラちゃん | 廊下の突き当たりにある、夫婦の寝室兼プライベートルーム。 |
| 波平・フネの部屋 | 波平、フネ | 床の間がある格式高い和室。波平が晩酌をしたり、着替えたりする場所。 |
| 客間 | 来客用 | 玄関のすぐ横。普段はあまり使われませんが、ノリスケさんなどが泊まることも。 |
特徴的なポイント
1. 「田の字型」の配置
日本の伝統的な家屋に見られる、部屋同士が襖(ふすま)で仕切られている構造です。襖を開け放つと大きな一つの空間になるため、親戚が集まる際などに便利ですが、プライバシーはほぼゼロという、現代人からすると少しスリリングな設計です。
2. 長い廊下と縁側
玄関から奥まで続く長い廊下があり、庭に面しては立派な縁側があります。ここで波平さんとマスオさんが囲碁を打ったり、カツオが日向ぼっこをしたりするシーンはお馴染みですね。
3. 台所(キッチン)と勝手口
サザエさんやフネさんがよくいる台所には、勝手口があります。酒屋の三河屋さん(サブちゃん)が御用聞きに来るのはここからです。
4. お風呂とトイレ
お風呂は薪で焚くタイプ(現在はガスに改造されている設定もあります)で、トイレは玄関から少し離れた廊下の奥に位置しています。
豆知識:磯野家の資産価値
もし今の時代、世田谷区桜新町にあれだけの土地(約60〜70坪)と平屋を所有していたら、土地代だけで1億5,000万円〜2億円は下らないと言われています。波平さんの事務職としての経済力、恐るべしですね。
